第一種電気工事士 過去問
令和7年度(2025年) 下期
問33 (一般問題 問33)

このページは閲覧用ページです。
履歴を残すには、 「新しく出題する(ここをクリック)」 をご利用ください。

問題

第一種電気工事士試験 令和7年度(2025年) 下期 問33(一般問題 問33) (訂正依頼・報告はこちら)

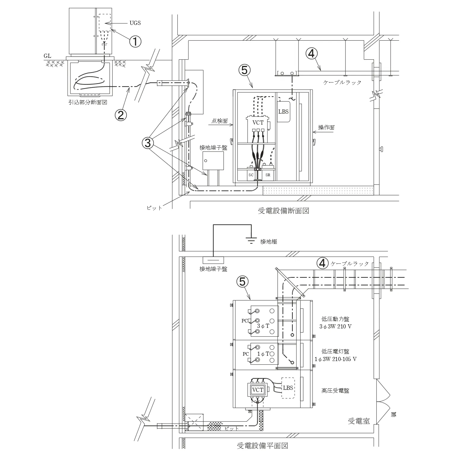
図は、一般送配電事業者の供給用配電箱(高圧キャビネット)から自家用構内を経由して、地下1階受電室に施設する屋内キュービクル式高圧受電設備(JIS C 4620適合品)に至る電線路及び低圧屋内幹線設備の一部を表した図である。この図に関する各問いには、4通りの答えが書いてある。それぞれの問いに対して、答えを1つ選びなさい。
〔注〕図において、問いに直接関係のない部分等は、省略又は簡略化してある。

④に示すケーブルラックの施工に関する記述として、不適切なものは。
問題文の画像
  • ケーブルラックが受電室の壁を貫通する部分に、適切な防火措置を施した。
  • 同一のケーブルラックに電灯幹線と動力幹線のケーブルを布設する場合、両者間のセパレータを省略した。
  • ケーブルラックは、ケーブル重量に十分耐える構造とし、天井コンクリートスラブからアンカーボルトで吊り、堅固に施設した。
  • ケーブルラックの長さが15mで、乾燥した場所であったため、D種接地工事を省略した。

次の問題へ

正解!素晴らしいです

残念...

この過去問の解説 (1件)

01

屋内キュービクル式高圧受電設備から低圧屋内幹線設備を表した図からの問題です。

ケーブルラックに関して問いています。

選択肢1. ケーブルラックが受電室の壁を貫通する部分に、適切な防火措置を施した。

誤:ケーブルラックが受電室の壁を貫通する部分には、適切な防火装置を施します。

選択肢2. 同一のケーブルラックに電灯幹線と動力幹線のケーブルを布設する場合、両者間のセパレータを省略した。

誤:同一のケーブルラックに伝統幹線と動力幹線のケーブルを布設する場合は、両者間のセパレータは不要です。

 

選択肢3. ケーブルラックは、ケーブル重量に十分耐える構造とし、天井コンクリートスラブからアンカーボルトで吊り、堅固に施設した。

誤:ケーブルラックは、ケーブルの重量に耐えて、天井コンクリートスラブからアンカーボルトで吊るように施設します。

選択肢4. ケーブルラックの長さが15mで、乾燥した場所であったため、D種接地工事を省略した。

正:ケーブルラックの長さ4m以下では、設置工事を省略できます。

しかし、問題文の場合は15mなので乾燥していてもD種接地工事を施します。

まとめ

ケーブルラックに関しての問題でした。

見た目的には、重量的に大丈夫なのかなと思うくらいケーブルがある場合もありますが、その辺は制度化されているようです。

参考になった数7